Коммерческие объекты
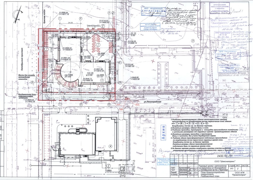
Торговый центр с автосалоном на пересечении ул. Ленинградской и Октябрьского проспекта г. Череповца
Вологодская обл, Череповец, Октябрьский, 36
Проектируемое здание торгового центра с автосалоном расположено в северной части Зашекснинского района 102 микрорайоне г. Череповца на на пересечении улиц Ленинградской и Октябрьского проспекта на свободной от застройки территории.
Каркас здания из металлоконструкций, фундаменты свайные с монолитными столбчатыми ростверками под колонны, ранужные стены – навесные стеновые панели типа "сендвич", внутренние стены и перегородки из силикатного кирпича. Кровля плоская рулонная.
Стены здания облицовываются фасадными панелями «АРМАКС» и «АЛПОЛИК». Цоколь здания – «Керамический гранит» СОЕМ Porfido Nero Serpentino (30х30 рустикальный, черный).
Площадь: 6658.45 кв.м
Этажность: 3




